Do obliczeń brane są po uwagę lokale prezentowane w serwisie tabelaofert.pl w okolicy uznanej przez algorytm serwisu za właściwy dla danej lokalizacji.
W obliczeniach nie są uwzględniane lokale dla których wystawca oferty nie dostarczył danych.
Oprogramowanie z którego korzysta tabelaofert.pl liczy czas dostępu promieni słonecznych w pomieszczeniu wg czasu słonecznego dla równonocy w godzinach 7:00-17:00.
Obliczenia dokonywane są automatycznie w oparciu o wstępne materiały projektowe i rzeczywiste wartości po wybudowaniu budynku mogą nie do końca pokrywać się z prezentowanymi symulacjami, tabelaofert.pl publikuje je dla celów porównawczych.
Oprogramowanie z którego korzysta tabelaofert.pl liczy powierzchnię okien oraz podłogi w oparciu o wstępne materiały projektowe i rzeczywiste wartości po wybudowaniu budynku mogą nie do końca pokrywać się z prezentowanymi symulacjami, tabelaofert.pl publikuje je dla celów porównawczych.
Zalety:
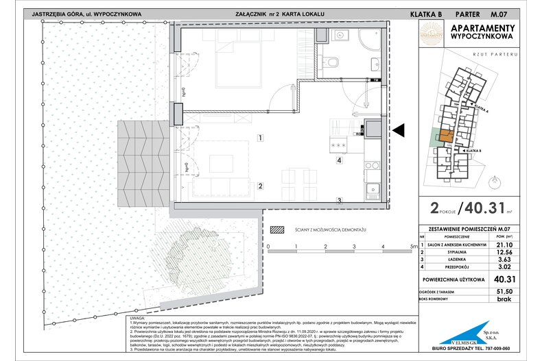
Cena Układ funkcjonalny Nasłonecznienie Układ komunikacji Salon z aneksem 21,26 m² Sypialnia 12,56 m² Łazienka 3,63 m² Ogródek 46,25 m² Taras 5,25 m²
Analiza ceny na tle konkurencji
Cena: 744 182,60 zł
52%
metodologia
Atrakcyjna cena!
Tylko 48% prezentowanych w serwisie mieszkań dwupokojowych w okolicy ma lepszą cenę niż to mieszkanie.
Analiza zalet układu funkcjonalnego na tle podobnych ofert w okolicy
Efektywna powierzchnia
Kupując mieszkanie płacimy za każdy jego metr kwadratowy, dla części nabywców bardzo istotne jest aby tych metrów było jak najmniej przy zachowaniu pożądanej funkcji, zazwyczaj określonej przez liczbę pokoi. Krótko mówiąc – im mniejsza powierzchnia przy tej samej liczbie pokoi tym lepiej, bo płacimy z mniej metrów kwadratowych. Jest to szczególnie istotne przy kupnie mieszkania z myślą o wynajmie.
53%
metodologia
Atrakcyjna oferta!
Mieszkanie zostało zaprojektowane w sposób zapewniający niemal perfekcyjne wykorzystanie powierzchni, wśród prezentowanych w serwisie mieszkań dwupokojowych w okolicy tylko 47% jest mniejsze
Analiza nasłonecznienia mieszkania na tle podobnych ofert w okolicy
Nasłonecznienie mieszkania
Słońce ma pozytywny wpływ na samopoczucie i zdrowie człowieka, a także na odporność organizmu i walkę z infekcjami. Promienie słońca mają także działanie antyseptyczne, zabijają wirusy i bakterie. Regulacje prawne w Polsce określają minimalny czas, w którym promienie słoneczne mają docierać do mieszkania na 3 godziny w czasie równonocy. Wg tych regulacji maksymalny możliwy czas nasłonecznienia to 10 godzin. Oczywiście najlepiej jest, aby mieszkanie zaprojektowane było w taki sposób, aby o każdej porze dnia było takie miejsce, do którego docierają promienie słoneczne.
Bezpośredni dostęp promieni słonecznych dla równonocy: 3 godziny 18 minut w godzinach
od 12:58 do 16:16.
metodologia
Analiza zalet układu komunikacji na tle podobnych ofert w okolicy
Udział komunikacji: 7%
Najbardziej efektywnie wykorzystana powierzchnia mieszkania jest wtedy, gdy powierzchnie komunikacyjne takie jak hall, korytarz czy przedsionek stanowią jak najmniejszy udział w całkowitej powierzchni mieszkania.
Korytarz: 3,02 m²
Analiza zalet salonu z aneksem na tle podobnych ofert w okolicy
Powierzchnia salonu: 21,26 m², okna na zachód (W)
Salon z aneksem jest centralnym miejscem w mieszkaniu, w którym spędzamy dużo czasu i spotykają się wszyscy domownicy. Łączy w sobie funkcje kuchni i salonu, więc jego powierzchnia ma kluczowe znaczenie dla komfortu użytkowania mieszkania i jego możliwości aranżacyjnych.
52%
metodologia
Bardzo duży salon!
W prezentowanych w serwisie mieszkaniach dwupokojowych w okolicy tylko 48% salonów ma większą powierzchnię.
Oświetlenie dzienne salonu (powierzchnia okien do powierzchni podłogi): 30,5%
Właściwy dostęp do światła dziennego zapewnia lepszy nastrój, mniejsze zmęczenie oczu, spokojniejszy sen, a także ogólnie zmniejszenie zmęczenia organizmu. Lepszy dostęp do światła dziennego znacznie zwiększa koncentrację, światło dzienne tworzy jaśniejszy i radośniejszy dom. Parametrem, który mierzy dostęp światła dziennego do pomieszczeń jest stosunek powierzchni okien do powierzchni podłogi. Dla pomieszczeń przeznaczonych na stały pobyt ludzi parametr ten nie powinien być mniejszy niż 1/8 (12,5%). Im wyższa wartość, tym jaśniejsze pomieszczenie nawet przy oknach na północ.
69%
metodologia
Bardzo dobre oświetlenie dzienne!
W prezentowanych w serwisie mieszkaniach dwupokojowych w okolicy tylko 31% salonów ma lepsze oświetlenie dzienne.
30,5%
doświetlenie mieszkania
12,5%
wartość normatywna
Oświetlenie dzienne przekracza wartość normatywną o 144%
metodologia
Nasłonecznienie dzienne salonu
Salon to centrum życia w każdym domu, dlatego ważne jest aby miał jak najdłuższy dostęp promieni słonecznych. Słońce ma pozytywny wpływ na samopoczucie i zdrowie człowieka, a także na odporność organizmu i walkę z infekcjami. Regulacje w Polsce określają minimalny czas, w którym promienie słoneczne mają docierać do mieszkania na 3 godziny w czasie równonocy. Wg tych regulacji maksymalny możliwy czas nasłonecznienia to 10 godzin, możliwe jest to najczęściej dla salonu z oknami na wschód, zachód i południe. Z kolei dla salonów skierowanych tylko na zachód lub wschód maksymalny możliwy czas nasłonecznienia to 5 godzin. W praktyce więc każde pomieszczenie, które przekracza warunki normowe w Polsce (rygorystyczne na tle innych krajów) należy uznać za bardzo dobrze zaprojektowane pod względem nasłonecznienia.
Bezpośredni dostęp promieni słonecznych dla równonocy: 3 godziny 18 minut w godzinach
od 12:58 do 16:16.
metodologia
Analiza zalet sypialni na tle podobnych ofert w okolicy
Powierzchnia sypialni: 12,56 m², okna na zachód (W)
Im większa powierzchnia sypialni tym lepiej. Duże pomieszczenie łatwiej zaprojektować w sposób zapewniający jej komfortowe i wszechstronne użytkowanie – może służyć nie tylko jako sypialnia małżeńska ale również pokój dla dzieci czy choćby gabinet lub pokój do nauki. W mniejszych mieszkaniach lub dla większej rodziny duża sypialnia może również pomieszczeniem wielofunkcyjnym (np. łącząc funkcję sypialni i pomieszczenia do pracy)
86%
metodologia
Bardzo duża sypialnia!
W prezentowanych w serwisie mieszkaniach dwupokojowych w okolicy tylko 14% sypialni ma większą powierzchnię.
Oświetlenie dzienne sypialni (powierzchnia okien do powierzchni podłogi): 34,4%
Właściwy dostęp do światła dziennego zapewnia lepszy nastrój, mniejsze zmęczenie oczu, spokojniejszy sen, a także ogólnie zmniejszenie zmęczenia organizmu. Lepszy dostęp do światła dziennego znacznie zwiększa koncentrację, światło dzienne tworzy jaśniejszy i radośniejszy dom. Parametrem, który mierzy dostęp światła dziennego do pomieszczeń jest stosunek powierzchni okien do powierzchni podłogi. Dla pomieszczeń przeznaczonych na stały pobyt ludzi parametr ten nie powinien być mniejszy niż 1/8 (12,5%). Im wyższa wartość, tym jaśniejsze pomieszczenie nawet przy oknach na północ.
79%
metodologia
Bardzo dobre oświetlenie dzienne!
W prezentowanych w serwisie mieszkaniach dwupokojowych w okolicy tylko 21% sypialni ma lepsze oświetlenie dzienne.
34,4%
doświetlenie mieszkania
12,5%
wartość normatywna
Oświetlenie dzienne przekracza wartość normatywną o 175%
metodologia
Nasłonecznienie południowe sypialni
Promienie słoneczne mają pozytywny wpływ na samopoczucie i zdrowie człowieka. Sypialnia w do której słońce wpada bezpośrednio w godzinach południowych jest idealna dla tych, którzy lubią pospać dłużej. Wtedy słońce nie będzie oślepiać z samego rana. Taka sypialnia idealnie nadaje się też na pomieszczenie dla dzieci, które jest przecież nie tylko miejscem snu, ale także zabawy i nauki. W naszym klimacie dzieci muszą przez długie tygodnie przebywać w pomieszczeniach zamkniętych, korzystne jest więc, aby zwłaszcza zimą bawiły się tam, gdzie jak najdłużej zaglądają promienie słoneczne.
74%
metodologia
Bardzo dobre nasłonecznienie!
Ta sypialnia jest idealna dla osób które chcą pospać dłużej, słońce nie wpada do niej w godzinach porannych, ale doświetla ją w ciągu dnia. Tylko 26% sypialni w prezentowanych w serwisie mieszkaniach dwupokojowych w okolicy jest lepiej zaprojektowanych pod tym względem.
Bezpośredni dostęp promieni słonecznych dla równonocy: 2 godziny 16 minut w godzinach
od 13:12 do 15:28.
metodologia
Analiza zalet łazienki na tle podobnych ofert w okolicy
Powierzchnia łazienki: 3,63 m²
Duża powierzchnia łazienki ułatwia jest atrakcyjną aranżację, utrzymanie w czystości i komfortowe użytkowanie. Duże łazienki projektuje się zazwyczaj w luksusowych apartamentach.
Analiza zalet ogródka na tle podobnych ofert w okolicy
Powierzchnia ogródka: 46,25 m²
83%
metodologia
Bardzo duży ogródek!
W prezentowanych w serwisie mieszkaniach dwupokojowych w okolicy tylko 17% ogródków ma większą powierzchnię.
Analiza zalet tarasu na tle podobnych ofert w okolicy
Powierzchnia tarasu: 5,25 m²

Apartament wakacyjny 40,47 m², parter, oferta nr MN07

Inwestycja Apartamenty Wypoczynkowa

744 182,60 zł

Jastrzębia Góra, ul. Wypoczynkowa

Liczba pokoi:
2 pokoje
Powierzchnia:
40,47 m²
Piętro:
parter
Cena za m²:
18 388,50 zł/m²
Strony świata:
zachód (W)
Termin oddania:
III kw. 2026
Szczegóły ofert

Szczegóły ofert

pokaż/schowaj
Garaż
parking naziemny, parking podziemny
Powierzchnie zewnętrzne
ogródek (46.25 m²)
taras (5.25 m²)
Regularny układ
tak
Data aktualizacji
2026-05-05
Dane o budynku

Dane o budynku

pokaż/schowaj
Liczba pięter
4
Winda
tak
Budynek
boksy rowerowe, klimatyzacja, ogrzewanie podłogowe
Teren
ogrodzony
Dostępna/całkowita liczba ofert
63 / 63

Promocje
Aktualne promocje
pokaż/schowaj

APARTAMENTY Z BOKSAMI*

*Boks rowerowy przypisany do większości lokali – w cenie!


Zapraszamy do kontaktu.
Dowiedz się więcej

Opis oferty
Opis oferty
pokaż/schowaj

Apartamenty wakacyjne dostępne są z stawką VAT 23%, co umożliwia odliczenie podatku zarówno podczas zakupu, jak i w późniejszym użytkowaniu lokalu, np. w ramach wynajmu krótkoterminowego.

Inwestycja Apartamenty Wypoczynkowa, zlokalizowana przy ul. Wypoczynkowej w Jastrzębiej Górze, łączy nowoczesną architekturę, funkcjonalny układ mieszkań oraz doskonałą lokalizację, sprzyjającą wypoczynkowi i aktywnemu spędzaniu czasu.

Dogodna lokalizacja
Bezpośrednie sąsiedztwo terenów rekreacyjnych oraz dostęp do niezbędnej infrastruktury zapewniają komfortowe warunki zarówno do wypoczynku sezonowego, jak i pobytu przez cały rok:
  • plaża – 400 m

  • centrum – 700 m

  • najbliższy sklep – 500 m

W ramach inwestycji zaplanowano 63 apartamenty o powierzchni od 26,27 m² do 88,93 m². Lokale na parterze będą dysponować prywatnymi ogródkami, a na trzecim piętrze – balkonami lub tarasami. Na najwyższych piętrach przewidziano również mieszkania dwupoziomowe. Do większości apartamentów został przypisany boks rowerowy, cena za lokal obejmuje również boks. Każdy lokal ma również zagwarantowane miejsce postojowe – w hali garażowej lub na zewnętrznym parkingu (dodatkowo płatne).

Obecnie inwestycja znajduje się w fazie budowy, a planowane przekazanie kluczy przewidziano na III kwartał 2026 roku.

Dostępne mieszkania w Apartamenty Wypoczynkowa

Lista ofert
Plan pięter
3D
Liczba apartamentów wakacyjnych: 63
Filtruj filtruj
lokalId
promocja
plan
nr
powierzchnia
pokoje
piętro
powierzchnia
zewnętrzna
etap
cena
10208733
1
rzut
MN60
26,27 m²
1
3
25,92 m²
552 418,15 zł
Zapytaj o ofertę
>
10208702
1
rzut
MN29
28,16 m²
1
1
8,33 m²
525 101,76 zł
Zapytaj o ofertę
>
10208718
1
rzut
MN45
28,16 m²
1
2
8,33 m²
525 101,76 zł
Zapytaj o ofertę
>
10208686
1
rzut
MN13
28,16 m²
1
parter
23,17 m²
532 029,12 zł
Zapytaj o ofertę
>
10208731
1
rzut
MN58
31,78 m²
2
3
25,92 m²
650 225,85 zł
Zapytaj o ofertę
>
10208704
1
rzut
MN31
31,89 m²
1
2
8,42 m²
587 474,45 zł
Zapytaj o ofertę
>
10208688
1
rzut
MN15
31,90 m²
1
1
8,33 m²
587 650,95 zł
Zapytaj o ofertę
>
10208705
1
rzut
MN32
32,12 m²
1
2
8,42 m²
591 534,06 zł
Zapytaj o ofertę
>
10208689
1
rzut
MN16
32,13 m²
1
1
8,33 m²
591 710,57 zł
Zapytaj o ofertę
>
10208734
1
rzut
MN61
32,25 m²
2
3
8,03 m²
672 568,61 zł
Zapytaj o ofertę
>
10208719
1
rzut
MN46
33,11 m²
1
2
8,33 m²
613 080,59 zł
Zapytaj o ofertę
>
10208703
1
rzut
MN30
33,12 m²
1
1
8,33 m²
613 258,32 zł
Zapytaj o ofertę
>
10208730
1
rzut
MN57
33,18 m²
2
3
25,92 m²
677 786,46 zł
Zapytaj o ofertę
>
10208687
1
rzut
MN14
33,19 m²
1
parter
11,24 m²
622 667,21 zł
Zapytaj o ofertę
>
10208727
1
rzut
MN54
35,74 m²
2
3
12,14 m²
718 511,76 zł
Zapytaj o ofertę
>
10208726
1
rzut
MN53
36,90 m²
2
3
12,09 m²
741 033,80 zł
Zapytaj o ofertę
>
10208698
1
rzut
MN25
38,71 m²
2
1
10,64 m²
707 850,86 zł
Zapytaj o ofertę
>
10208682
1
rzut
MN09
38,73 m²
2
parter
49,65 m²
761 386,61 zł
Zapytaj o ofertę
>
10208714
1
rzut
MN41
38,74 m²
2
2
10,64 m²
708 380,37 zł
Zapytaj o ofertę
>
10208674
1
rzut
MN01
39,75 m²
2
parter
60,45 m²
745 764,38 zł
Zapytaj o ofertę
>
10208712
1
rzut
MN39
40,46 m²
2
2
10,67 m²
738 739,23 zł
Zapytaj o ofertę
>
10208680
1
rzut
MN07
40,47 m²
2
parter
51,50 m²
744 182,60 zł
Zapytaj o ofertę
powyższa oferta
10208696
1
rzut
MN23
40,47 m²
2
1
10,67 m²
738 915,74 zł
Zapytaj o ofertę
>
10208724
1
rzut
MN51
40,88 m²
2
3
12,77 m²
818 307,68 zł
Zapytaj o ofertę
>
10208725
1
rzut
MN52
40,92 m²
2
3
12,34 m²
819 084,31 zł
Zapytaj o ofertę
>
10208681
1
rzut
MN08
41,10 m²
2
parter
30,00 m²
735 546,15 zł
Zapytaj o ofertę
>
10208697
1
rzut
MN24
41,10 m²
2
1
10,67 m²
750 035,55 zł
Zapytaj o ofertę
>
10208713
1
rzut
MN40
41,11 m²
2
2
11,86 m²
750 212,06 zł
Zapytaj o ofertę
>
10208710
1
rzut
MN37
41,23 m²
2
2
11,86 m²
742 187,54 zł
Zapytaj o ofertę
>
10208721
1
rzut
MN48
41,30 m²
2
3
7,13 m²
854 401,67 zł
Zapytaj o ofertę
>
10208675
1
rzut
MN02
41,31 m²
2
parter
170,00 m²
794 391,20 zł
Zapytaj o ofertę
>
10208690
1
rzut
MN17
41,31 m²
2
1
7,13 m²
768 985,55 zł
Zapytaj o ofertę
>
10208706
1
rzut
MN33
41,33 m²
2
2
7,13 m²
769 345,94 zł
Zapytaj o ofertę
>
10208683
1
rzut
MN10
41,34 m²
2
parter
29,61 m²
754 271,67 zł
Zapytaj o ofertę
>
10208678
1
rzut
MN05
41,73 m²
2
parter
14,10 m²
736 555,37 zł
Zapytaj o ofertę
>
10208694
1
rzut
MN21
41,90 m²
2
1
11,86 m²
753 848,55 zł
Zapytaj o ofertę
>
10208677
1
rzut
MN04
41,92 m²
2
parter
15,20 m²
739 908,96 zł
Zapytaj o ofertę
>
10208685
1
rzut
MN12
41,99 m²
2
parter
99,32 m²
825 139,35 zł
Zapytaj o ofertę
>
10208717
1
rzut
MN44
42,00 m²
2
2
14,58 m²
781 419,00 zł
Zapytaj o ofertę
>
10208701
1
rzut
MN28
42,00 m²
2
1
14,58 m²
781 419,00 zł
Zapytaj o ofertę
>
10208735
1
rzut
MN62
42,28 m²
2
3
39,31 m²
862 650,91 zł
Zapytaj o ofertę
>
10208729
1
rzut
MN56
42,51 m²
2
3
12,29 m²
849 955,03 zł
Zapytaj o ofertę
>
10208728
1
rzut
MN55
42,56 m²
2
3
13,30 m²
850 925,81 zł
Zapytaj o ofertę
>
10208679
1
rzut
MN06
43,65 m²
2
parter
16,05 m²
770 444,33 zł
Zapytaj o ofertę
>
10208715
1
rzut
MN42
45,08 m²
2
2
10,35 m²
809 194,86 zł
Zapytaj o ofertę
>
10208699
1
rzut
MN26
45,09 m²
2
1
10,35 m²
809 368,91 zł
Zapytaj o ofertę
>
10208708
1
rzut
MN35
45,30 m²
2
2
10,23 m²
813 023,85 zł
Zapytaj o ofertę
>
10208692
1
rzut
MN19
45,30 m²
2
1
10,23 m²
813 023,85 zł
Zapytaj o ofertę
>
10208709
1
rzut
MN36
46,51 m²
2
2
11,52 m²
834 083,30 zł
Zapytaj o ofertę
>
10208693
1
rzut
MN20
46,98 m²
2
1
11,52 m²
842 263,41 zł
Zapytaj o ofertę
>
10208707
1
rzut
MN34
47,42 m²
2
2
7,13 m²
879 084,69 zł
Zapytaj o ofertę
>
10208722
1
rzut
MN49
47,46 m²
2
3
7,13 m²
978 168,69 zł
Zapytaj o ofertę
>
10208691
1
rzut
MN18
47,46 m²
2
1
7,13 m²
879 805,47 zł
Zapytaj o ofertę
>
10208676
1
rzut
MN03
47,46 m²
2
parter
111,50 m²
884 393,37 zł
Zapytaj o ofertę
>
10208736
1
rzut
MN63
47,95 m²
2
3
22,43 m²
976 004,01 zł
Zapytaj o ofertę
>
10208711
1
rzut
MN38
48,34 m²
2
2
11,52 m²
865 933,53 zł
Zapytaj o ofertę
>
10208720
1
rzut
MN47
48,42 m²
3
3
12,89 m²
977 803,38 zł
Zapytaj o ofertę
>
10208716
1
rzut
MN43
48,67 m²
2
2
14,58 m²
901 609,07 zł
Zapytaj o ofertę
>
10208700
1
rzut
MN27
48,67 m²
2
1
14,58 m²
901 609,07 zł
Zapytaj o ofertę
>
10208684
1
rzut
MN11
48,67 m²
2
parter
102,50 m²
952 493,55 zł
Zapytaj o ofertę
>
10208695
1
rzut
MN22
48,70 m²
2
1
11,52 m²
872 199,15 zł
Zapytaj o ofertę
>
10208732
1
rzut
MN59
56,19 m²
2
3
39,31 m²
936 900,84 zł
Zapytaj o ofertę
>
10208723
1
rzut
MN50
88,93 m²
3
3
71,28 m²
1 347 274,49 zł
Zapytaj o ofertę
>

Skontaktuj się z oferentem

pokaż/schowaj
ul. Warszawska 92
05-092 Łomianki

Numery kontaktowe:

Pokaż numer
Znajdź nas na:
Zapytaj o ofertę

Apartamenty Wypoczynkowa opinie:

pokaż/schowaj
Brak ocen - dodaj jako pierwszy
Dodaj ocenę